Type lokale
Kontor
Areal
150 m2
Megler
Navn: Stephane Bergfald Trotta
Send melding ›
Beskrivelse

Eiendommen har følgende ledige lokaler:
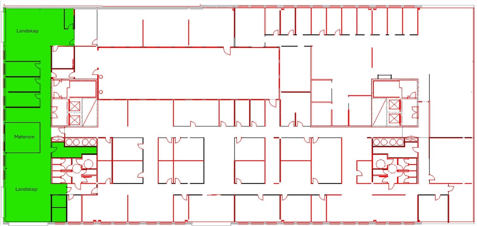
1. etg. kontor/showroom ca. BTA 180m² – lokalet er i dag innredet med 2 store landskap, tilgang til møterom, kjøkken og toaletter. Lokalene kan tilpasses for ny leietaker. Lokalene er ledige. Merk at det er en "felles" korridor mellom de 2 store landskapene og møterom, kjøkken, toaletter.
1. etg. kontor ca. BTA 499 m² – lokalet er i dag innredet med 2 store landskap, 1 cellekontor, 3 møterom, 2 stillerom, kjøkken og toaletter. Lokalene kan tilpasses for ny leietaker. Lokalene blir ledige 1.11.2025.
2. etg. kontor ca. BTA 384m² -lokalet er i dag innredet med to romslige landskap, 3 cellekontor, møterom, 2 stillerom og kjøkken. Lokalene kan tilpasses for ny leietaker. Felles toaletter. Lokalene er ledige.
4. etg. kontor ca. BTA 127 m² – lokalet er i dag innredet med 3 cellekontor, 1 landskap, møterom, tilgang til felles kjøkken med spiseplass og toaletter. Lokalene er ledige.

U1. etg. lager ca. BTA 157,1 m² – takhøyde ca. 3,5 m. Det er port i fasade inn til felles sluse hvor det er mulig å rygge inn bilder/mindre varebiler. Egen rulleport inn til lagerlokalet.
U1. etg. lager ca. BTA 62,5 m² – takhøyde ca. 3,5 m. Det er port i fasade inn til felles sluse hvor det er mulig å rygge inn bilder/mindre varebiler. Egen rulleport inn til lagerlokalet.
Lagerlokalene kan leies samlet eller hver for seg.

Matrikkelinformasjon

Kommunenr: 15

Gårdsnr: 4601

Bruksnr: 249

Annonsene kan være mangelfulle i forhold til lovpålagt opplysningsplikt. Før bindende avtale inngås oppfordres interessenter til å innhente komplett informasjon fra meglerforetaket, selger eller utleier.

Send melding

Send melding