Prisantydning ,-
Type lokale
Kombinasjonslokaler
Bruttoareal
1148 m2
Eieform
Selveier
Tomteareal
2517 m2
Byggeår
2019
Megler
Navn: Tomas Kartvedt
Navn: Kurt Furnes
Send melding ›
Innhold

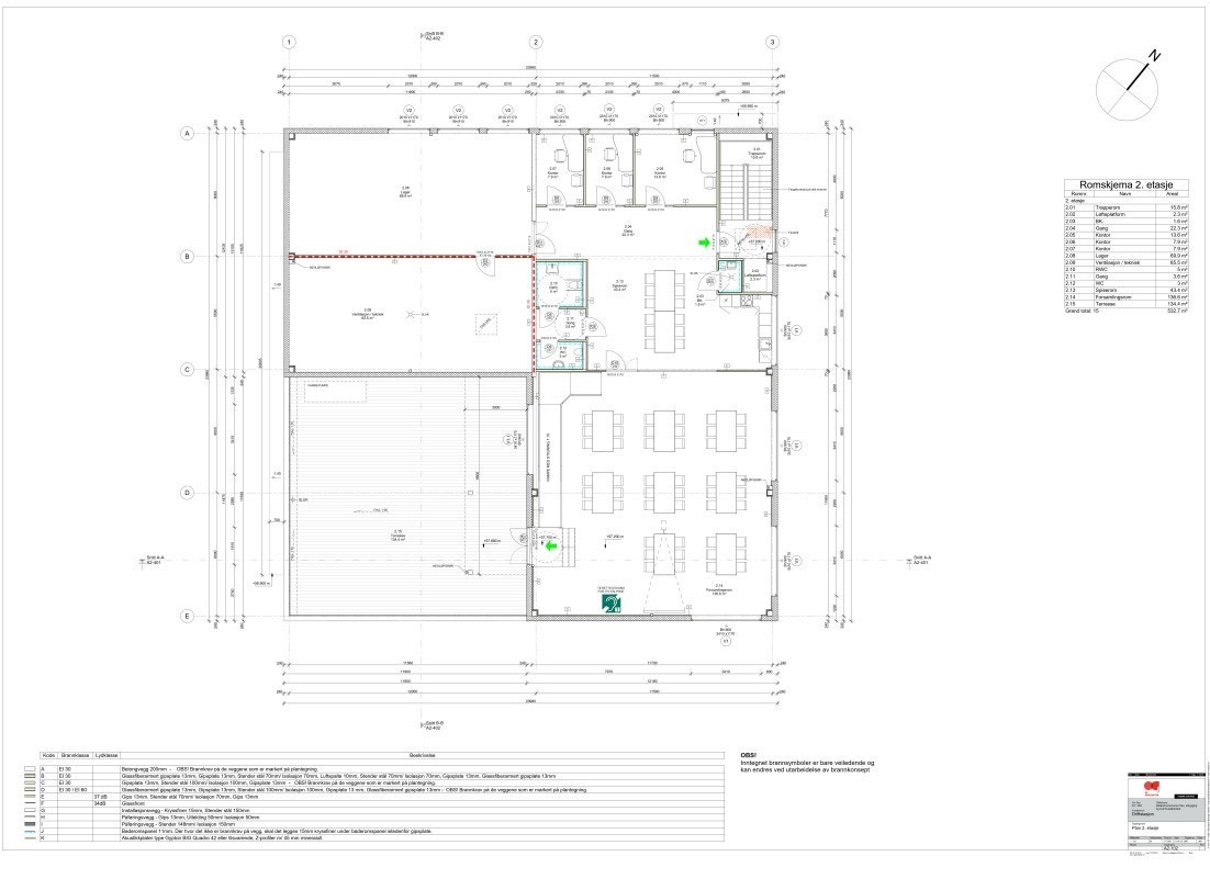
Bygget er oppført i 2019 og består av to etasjer med et samlet bruttoareal på ca. 1 148 m² og bruksareal på 1 063 m². Arealene er fordelt slik:

1.etasje
– Lagerarealer og verksted, inkludert eget rom til sveise-arbeid
– Garderober med dusj, wc og egen inngang til skitten sone for driftspersonell
– Flere lagerrom og boder
– Bøttekott og RWC/toaletter
– Trapperom og løfteplattform (heis) mellom etasjene
– Adkomst via store, automatiske porter til lagerdelene

2.etasje
– Fem kontorer, møterom og forsamlingsrom
– Kjøkken og spiserom
– Toaletter og RWC (rullestol tilpasset wc)
– Lager/arkiv og eget teknisk rom (ventilasjon/varmeanlegg)
– Takterrasse på ca. 134 m², tilgjengelig fra forsamlingsrommet

Standard

Bygget er oppført i 2019 og har betong rammeverk med prefabrikkerte betongetasjeskillere og isolerte yttervegger i sandwich-konstruksjon. Innvendige overflater består hovedsakelig av betonggulv med fast belegg, malte himlingsplater og malte vegger med glassfiberarmert gips. Det er installert heis mellom etasjene samt brann- og røykdetektorer i begge etasjer.

Bygget har moderne tekniske anlegg, inkludert ventilasjonssystem med varmegjenvinning og varmepumpe plassert på takterrassen, samt elektrisk anlegg med hovedtavle og IKT-løsninger i eget teknisk rom. Lagerdelen har store, automatiske rulleporter. Vinduer og ytterdører er utført i isolerglass.

Beliggenhet

Eiendommen er beliggende på Mjåtveit / Frekhaug i Mjåtveit næringspark, i et etablert område med variert næringsvirksomhet. Den har kort avstand til hovedveien og enkel adkomst via offentlig vei med privat felles adkomstvei fram til bygget. Området ligger nær Frekhaug sentrum, med tilgang til handel og servicetilbud i nærområdet.

Overtakelse

Etter nærmere avtale.

Matrikkelinformasjon

Kommunenr: 322

Gårdsnr: 4631

Bruksnr: 260

Annonsene kan være mangelfulle i forhold til lovpålagt opplysningsplikt. Før bindende avtale inngås oppfordres interessenter til å innhente komplett informasjon fra meglerforetaket, selger eller utleier.

Send melding

Send melding