Prisantydning 11 600 000,-
Type lokale
Kontor
Bruttoareal
435 m2
Eieform
Selveier
Tomteareal
789 m2
Byggeår
1883
Megler
Navn: Tomas Kartvedt
Navn: Stephane Bergfald Trotta
Send melding ›
Innhold

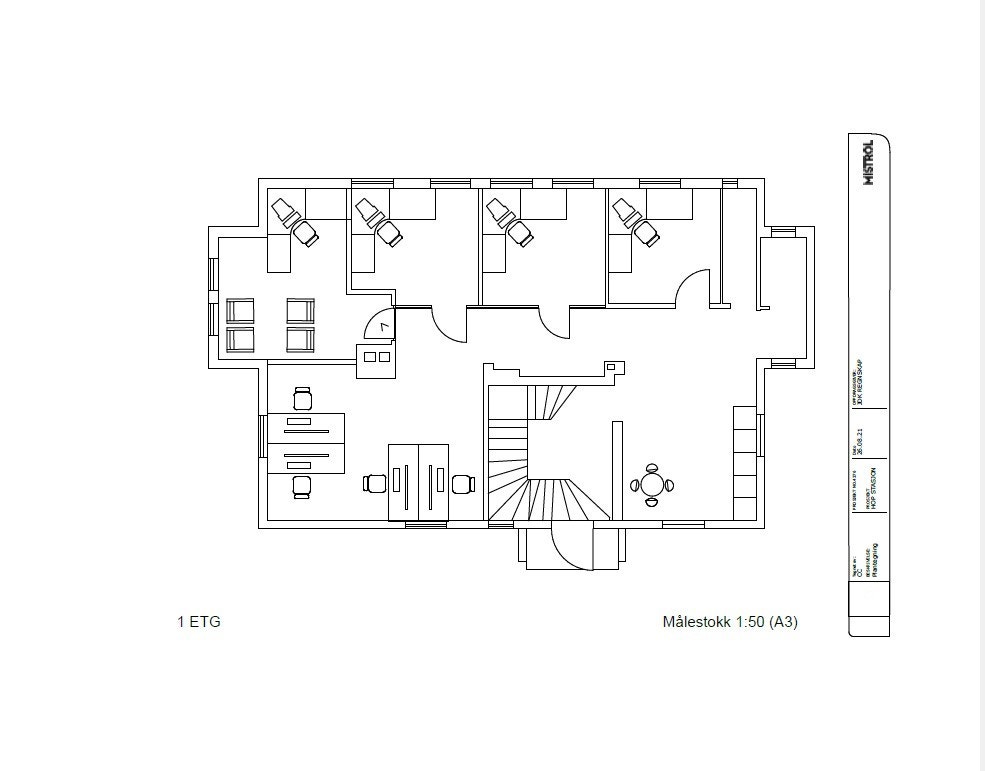
1.etasje: Entré og trappeareal, Gang- og fellesarealer, Kontorer, Spiserom, 2 stk. WC-rom.
2. etasje: Gang- og trappeareal, Kontorer, Møterom, WC-rom
Loft: Trappeareal, Møterom, Bad, Teknisk rom med ventilasjonsaggregat
Kjeller: Boder og lagerrom. Arealer benyttet til sekundære formål og oppbevaring

Standard

Bygningen er opprinnelig oppført ca. 1883 og er senere oppgradert, herunder vesentlig rehabilitering i 2018. Konstruksjoner og tekniske løsninger er av varierende alder og standard. Det er tradisjonelle trekonstruksjoner, murte fundamenter, tak tekket med betongtakstein samt trevinduer med isolerglass og sprosser.
For nærmere beskrivelse av bygningens konstruksjoner, materialbruk og tekniske forhold vises det til vedlagt verdivurderingsrapport datert 26.02.2026, utarbeidet av Norsk Takst-autorisert takstingeniør.

Beliggenhet

Eiendommen har en sentral og lett tilgjengelig beliggenhet på Paradis/Hop. Det er kort avstand til Nesttun sentrum og gode forbindelser mot Bergen sentrum, Sandsli/Kokstad og Bergen lufthavn. Eiendommen har enkel adkomst fra Wernersholmvegen og ligger i umiddelbar nærhet til hovedfartsåren E39. Det er også kort gangavstand til bybanestopp i Nesttunveien.

Overtakelse

Etter nærmere avtale med selger. Vær vennlig å angi ønsket overtagelsesdato i femlagt bud.

Matrikkelinformasjon

Kommunenr: 41

Gårdsnr: 4601

Bruksnr: 1219

Annonsene kan være mangelfulle i forhold til lovpålagt opplysningsplikt. Før bindende avtale inngås oppfordres interessenter til å innhente komplett informasjon fra meglerforetaket, selger eller utleier.

Send melding

Send melding